Piso Castellana 177 – Con Piscina y Vistas

Piso Castellana 177 – Con Piscina y Vistas
Precio 860.000 €
Habitaciones 2
Baños 2
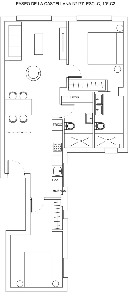
Superficie 84 m²
Ubicación Paseo de la Castellana 177, Madrid
Parking No

Piso de Paseo de la Castellana 177.

Planta 10, muchísima luz.

Piso con piscina de 84 metros.

Totalmente reformado y amueblado.

2 dormitorios, 2 baños, uno de ellos en suite, armarios empotrados, vestidos con baldas y cajoneras.

Salón comedor, cocina, equipada con todos los electrodomésticos.

Aire acondicionado por conductos.

Ventanas de PVC oscilobatientes, con climalit.

Persianas motorizadas en toda la casa.

Precio 860.000€
Comunidad 130€
IBI 800€

Amenidades y Características

Amenidades

  • Planta 10
  • Muchísima luz
  • Piscina
  • Totalmente reformado
  • Totalmente amueblado
  • Baño en suite
  • Armarios empotrados vestidos
  • Baldas y cajoneras
  • Cocina equipada
  • Todos los electrodomésticos
  • Aire acondicionado por conductos
  • Ventanas PVC oscilobatientes
  • Climalit
  • Persianas motorizadas

Condiciones

  • Comunidad: 130€/mes, IBI: 800€/año

Ubicación

Descubre la zona y los alrededores

Video de la Propiedad

Conoce más detalles de esta propiedad a través de nuestro video.

Solicitar Información

¿Tienes preguntas sobre esta propiedad? Envíanos un mensaje y te responderemos lo antes posible.

    Contacto Directo

    1